Negozio in vendita

Breganze, Via Mirabella - Mirabella
€ 580.000
7 locali 7 locali
685 Mq 685 Mq
2 bagni 2 bagni

Negozio in vendita

Breganze, Via Mirabella - Mirabella

Descrizione annuncio

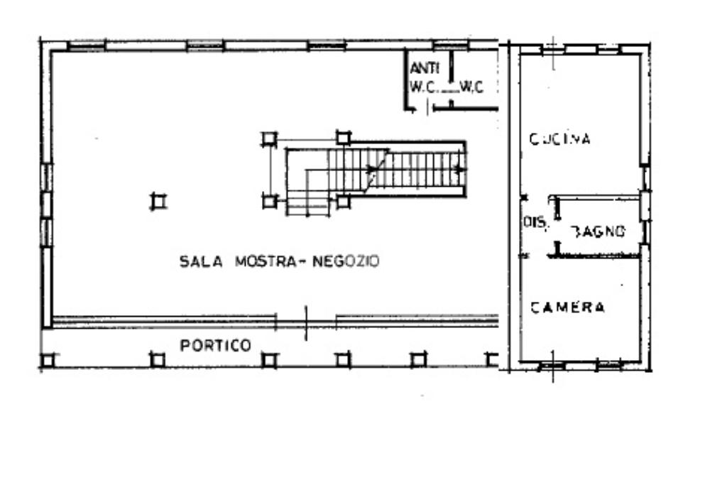
MIRABELLA DI BREGANZE – IMMOBILE COMMERCIALE CON ABITAZIONE E MAGAZZINO
In posizione strategica lungo la strada provinciale che collega Sandrigo a Breganze, proponiamo in vendita immobile ad uso commerciale (ex mobilificio) costruito negli anni ’90, in ottime condizioni di manutenzione e pronto all’uso, senza necessità di lavori.
La proprietà insiste su un lotto di circa 1.600 mq, con ampia area esterna ideale per parcheggio clienti, esposizione o manovra mezzi.
Composizione:
• Piano terra di mq 178: ampio spazio commerciale con ottima visibilità su strada
• Mini appartamento al piano terra di mq 49
• Piano primo di mq 257 : ulteriore area espositiva/uffici
• Piano interrato: magazzino di circa 250 mq con comodo scivolo di accesso carrabile


L’immobile si presta perfettamente per:
• attività artigianali
• showroom
• attività con vendita diretta
• aziende che necessitano di deposito e parte commerciale integrata
Ottima visibilità, accessi comodi e contesto ben collegato rendono questa soluzione particolarmente interessante per chi cerca una sede rappresentativa e funzionale.

Mostra tutto

Nelle vicinanze

Trasporto pubblico Trasporto pubblico
Breganze - Istituto Scotton
Breganze - Istituto Scotton
2,8 Km
Breganze - Centro
Breganze - Centro
2,8 Km
Scuole Scuole
Scuole
510 m
Scuole Medie Montecchio Precalcino
1,8 Km
Scuole Elementari Montecchio Precalcino
1,8 Km
Scuole Elementari
2,7 Km
Istituto Istruzione Superiore Andrea Scotton
2,7 Km
Farmacia Farmacia
Ai due Gigli
2,9 Km
Farmacia Menga
3,0 Km
Ospedali Ospedali
Distretto di Breganze Usll n°7
2,8 Km
Supermercati Supermercati
Supermercati
580 m
Davide
2,1 Km
Coop
2,6 Km
Negozi Negozi
BeYou
1,7 Km
Cloè moda e lingerie srls
2,6 Km
Bar Bar
Papa Whisky
500 m
Bar Parsifal
1,5 Km
Caffè Centrale
2,8 Km
H2O
2,8 Km
Bar
2,8 Km
Ristoranti Ristoranti
Ristorante Da Elvio
280 m
Pizzeria Grappolo d'oro da Biancaneve
730 m
Don Pablo
1,5 Km
Trattoria alle Quattro Strade
1,5 Km
La Ciacola
2,9 Km
Mostra tutto

Caratteristiche

Rif.:
61180895
Piano:
Su più livelli di 3
Totale piani:
3
Box:
2
Posti auto:
8
Condizionamento:
Autonomo
Mostra tutto
Prezzo Prezzo
€ 580.000
Rata mutuo Rata mutuo
€ 2.753 / mese
Spese annue Spese annue
€ 0
Proponi il tuo prezzoProponi il tuo prezzo

Classe Energetica

D
D
D
D
D
D
D
D
D
EP globale non rinnovabile:
100.00 kW h/m² anno
EP globale rinnovabile:
0.50 kW h/m² anno
EP invernale del fabbricato:
EP estiva del fabbricato:
Anno di costruzione:
1990
Riscaldamento:
Autonomo
Tipo impianto:
A radiatori
Tipo alimentazione:
Metano

Ti interessa visionare l'immobile?

Fissa un appuntamento  Fissa un appuntamento

Richiedi informazioni

Clicca su Leggi per aprire l'informativa
* Questi campi sono obbligatori

Calcola il tuo mutuo

Semplice e senza impegno
Anticipo

( % )
Mutuo

( % )

pochi semplici passi

inserisci i tuoi dati
Questionario completato
Grazie per aver richiesto un appuntamento senza impegno con un nostro Consulente del Credito e Assicurativo.

Hai inserito correttamente tutti i dati necessari e a breve riceverai una e-mail con un link da convalidare per inviare i tuoi dati.
Affiliato
C.g. Srl
Via Roma, 2 36066 Sandrigo (VI)

Il nostro staff


  • Arianna Zanon
    Affiliata

  • Rosario Marco La Barbera
    Affiliato

  • Mery Pesavento
    Coordinatrice

  • Sissi Stragliotto
    Collaboratrice
Via Roma, 2 36066 Sandrigo (VI)
Zona: Sandrigo - Montecchio Precalcino - Bressanvido - Schiavon - Breganze
Mostra su mappa
Orari: lunedì- venerdì: 09,00-12,30 e 15,00-19,30; sabato chiusura 12,30; sabato pomeriggio e domenica su appuntamento.
Affiliato
C.g. Srl
Via Roma, 2 36066 Sandrigo (VI)

2026 Tecnocasa Franchising S.p.A. - P. IVA 08365160152 - Via Monte Bianco 60/A 20089 Rozzano (MI). Ogni agenzia ha un proprio titolare ed è autonoma. Privacy policy | Policy utilizzo | Cookie policy