Porzione di bifamiliare in vendita

Breganze, Via Capitello - Mirabella
€ 450.000
5 locali 5 locali
277 Mq 277 Mq
3 bagni 3 bagni

Porzione di bifamiliare in vendita

Breganze, Via Capitello - Mirabella

Descrizione annuncio

Immersa nel verde, proponiamo in vendita una splendida VILLA BIFAMILIARE dalle metrature generose, ideale per chi desidera ampi spazi, tranquillità e massimo comfort abitativo.

L’abitazione è stata completamente ristrutturata negli anni 2000 e si presenta oggi in perfette condizioni, senza necessità di ulteriori interventi.

Spazi esterni

La proprietà è circondata da un’area esclusiva composta da:
• Giardino curato con piante ornamentali.
• Ampio portico coperto, perfetto per pranzi e cene all’aperto durante la bella stagione, con camino per piacevoli momenti conviviali.

Distribuzione interna

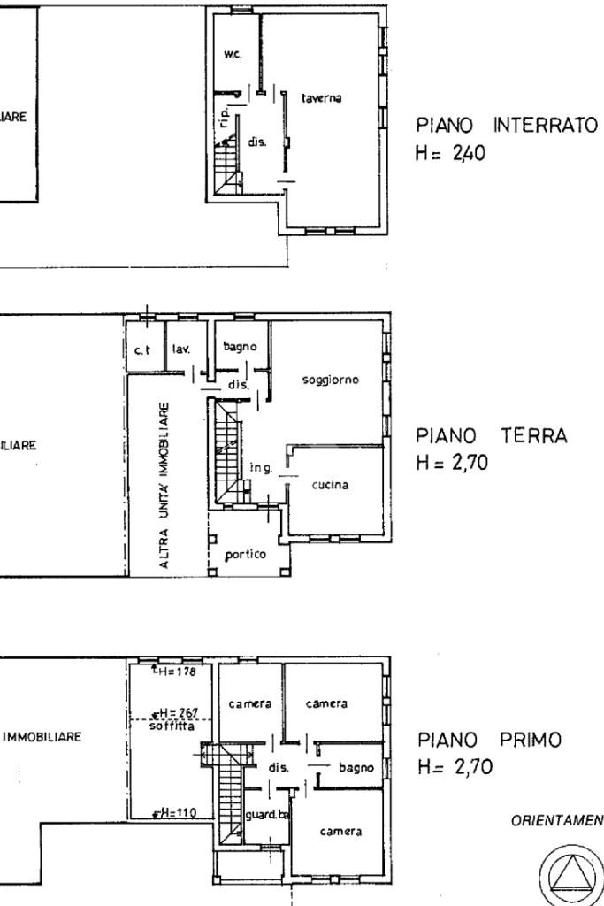
L’immobile si sviluppa su tre livelli:

Piano Terra
• Ampio ingresso
• Cucina e soggiorno separati, luminosi e ben distribuiti
• Bagno finestrato
• Lavanderia
• Garage comodo e direttamente collegato all’abitazione.

Piano Primo
• Quattro camere da letto, ideali per famiglie numerose o per chi necessita di spazi dedicati a studio e hobby
• Bagno
• Cabina armadio

Piano Interrato
• Grande taverna con camino, perfetta per serate con amici e familiari
• Ulteriore bagno

Dotazioni e Comfort

L’abitazione offre numerosi plus, tra cui:
• Pannelli fotovoltaici
• Tre climatizzatori recenti
• Termocamino nella zona giorno
• Camino sia in taverna che all’esterno sotto il portico
• Riscaldamento a termosifoni con caldaia di recente sostituzione
• Impianto d’allarme volumetrico e perimetrale.

Mostra tutto

Nelle vicinanze

Trasporto pubblico Trasporto pubblico
Breganze - Centro
Breganze - Centro
2,4 Km
Breganze - Istituto Scotton
Breganze - Istituto Scotton
2,4 Km
Scuole Scuole
Scuole
100 m
Scuole Medie Montecchio Precalcino
2,3 Km
Scuole Elementari
2,3 Km
Scuole Elementari Montecchio Precalcino
2,3 Km
Ic Breganze
2,3 Km
Farmacia Farmacia
Ai due Gigli
2,4 Km
Farmacia Menga
2,8 Km
Ospedali Ospedali
Distretto di Breganze Usll n°7
2,4 Km
Supermercati Supermercati
Supermercati
170 m
Coop
2,2 Km
Davide
2,6 Km
Prix
2,9 Km
EuroSpin
2,9 Km
Negozi Negozi
BeYou
2,0 Km
Cloè moda e lingerie srls
2,2 Km
Bar Bar
Papa Whisky
300 m
Bar Parsifal
1,8 Km
Caffè Centrale
2,4 Km
Bar
2,4 Km
Unico Senso
2,5 Km
Ristoranti Ristoranti
Ristorante Da Elvio
260 m
Pizzeria Grappolo d'oro da Biancaneve
520 m
Don Pablo
1,8 Km
Trattoria alle Quattro Strade
1,9 Km
La Ciacola
2,5 Km
Mostra tutto

Caratteristiche

Rif.:
61152510
Piano:
3 di 3 (Piano su più livelli)
Box:
1
Posti auto:
2
Balconi:
1
Terrazzi:
1
Mostra tutto
Prezzo Prezzo
€ 450.000
Rata mutuo Rata mutuo
€ 2.120 / mese
Spese annue Spese annue
€ 0
Proponi il tuo prezzoProponi il tuo prezzo

Classe Energetica

C
C
C
C
C
C
C
C
C
EP invernale del fabbricato:
EP estiva del fabbricato:
Anno di costruzione:
1992
Riscaldamento:
Autonomo
Tipo impianto:
A radiatori
Tipo alimentazione:
Metano

Ti interessa visionare l'immobile?

Fissa un appuntamento  Fissa un appuntamento

Richiedi informazioni

Clicca su Leggi per aprire l'informativa
* Questi campi sono obbligatori

Calcola il tuo mutuo

Semplice e senza impegno
Anticipo

( % )
Mutuo

( % )

pochi semplici passi

inserisci i tuoi dati
Questionario completato
Grazie per aver richiesto un appuntamento senza impegno con un nostro Consulente del Credito e Assicurativo.

Hai inserito correttamente tutti i dati necessari e a breve riceverai una e-mail con un link da convalidare per inviare i tuoi dati.
Affiliato
C.g. Srl
Via Roma, 2 36066 Sandrigo (VI)

Il nostro staff


  • Arianna Zanon
    Affiliata

  • Rosario Marco La Barbera
    Affiliato

  • Mery Pesavento
    Coordinatrice

  • Sissi Stragliotto
    Collaboratrice
Via Roma, 2 36066 Sandrigo (VI)
Zona: Sandrigo - Montecchio Precalcino - Bressanvido - Schiavon - Breganze
Mostra su mappa
Orari: lunedì- venerdì: 09,00-12,30 e 15,00-19,30; sabato chiusura 12,30; sabato pomeriggio e domenica su appuntamento.
Affiliato
C.g. Srl
Via Roma, 2 36066 Sandrigo (VI)

2026 Tecnocasa Franchising S.p.A. - P. IVA 08365160152 - Via Monte Bianco 60/A 20089 Rozzano (MI). Ogni agenzia ha un proprio titolare ed è autonoma. Privacy policy | Policy utilizzo | Cookie policy