Rustico in vendita

Bressanvido, Via Vegri
€ 75.000
Prezzo aggiornato
325 Mq 325 Mq
2 bagni 2 bagni

Rustico in vendita

Bressanvido, Via Vegri

Descrizione annuncio

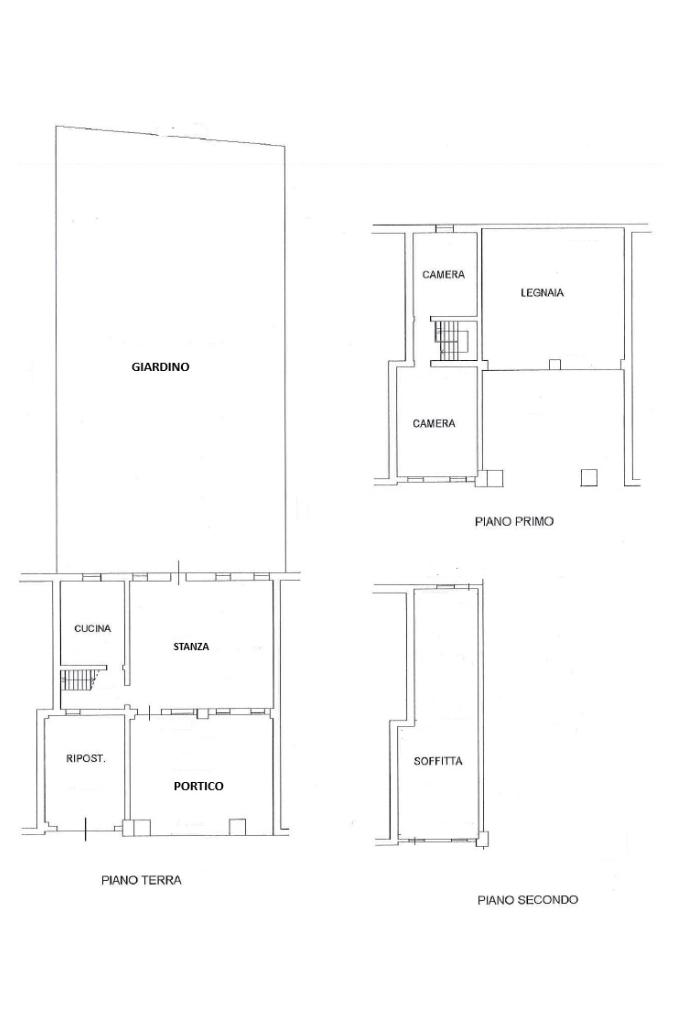
Casa da Ristrutturare con ampio Giardino. Situata in una zona tranquilla e immersa nel verde, questa proprietà di 300 mq è attualmente in stato di rudere, offrendo un'incredibile libertà creativa per la tua ristrutturazione.

Con la possibilità di realizzare più unità abitative, questa casa rappresenta anche un'ottima opportunità per investitori o per chi desidera creare una soluzione abitativa per la propria famiglia.

La posizione della casa ti permette di godere della tranquillità della campagna.
Non perdere l'occasione di dare vita a questo progetto! Contattaci per maggiori informazioni e per organizzare una visita.

Mostra tutto

Nelle vicinanze

Trasporto pubblico Trasporto pubblico
Bressanvido
Bressanvido
500 m
Bressanvido - Farmacia
Bressanvido - Farmacia
590 m
Scuole Scuole
Scuola dell'infanzia parrocchiale "Ai Caduti"
640 m
Scuole
660 m
Scuola primaria "Le Risorgive"
1,2 Km
Scuola Primaria Sebastiano Tecchio
2,2 Km
Scuola primaria Sebastiano Tecchio
2,2 Km
Farmacia Farmacia
Farmacia San Rocco
550 m
Farmacia dott.ssa Todesco
2,4 Km
Supermercati Supermercati
Scanagatta Market
500 m
Spaccio Latterie Vicentine
770 m
Latterie Vicentine
880 m
Coop
1,7 Km
Despar Boscato
2,4 Km
Negozi Negozi
Scalco abbigliamento
530 m
Panificio Lieciani
530 m
Bar Bar
Bar commercio da Carolo
520 m
Birreria alla Pesa
540 m
Bar NOI
660 m
Bar
1,5 Km
Locanda 47
2,3 Km
Ristoranti Ristoranti
Cà diVino
1,3 Km
La Colombara
2,3 Km
Trattoria da Palmerino
2,5 Km
Trattoria da Adriano
2,9 Km
Mostra tutto

Caratteristiche

Rif.:
61030484
Piano:
2 di 3 (Piano su più livelli)
Box:
2
Posti auto:
2
Camere da letto:
2
Arredamento:
Assente
Mostra tutto
Prezzo Prezzo
€ 75.000
Rata mutuo Rata mutuo
€ 356 / mese
Spese annue Spese annue
€ 0
Proponi il tuo prezzoProponi il tuo prezzo

Classe Energetica

G
G
G
G
G
G
G
G
G
EP globale non rinnovabile:
3337.00 kW h/m² anno
EP invernale del fabbricato:
EP estiva del fabbricato:
Anno di costruzione:
1920
Riscaldamento:
Assente

Prezzo ridotto di €1 (17%%)

Ti interessa visionare l'immobile?

Fissa un appuntamento  Fissa un appuntamento

Richiedi informazioni

Clicca su Leggi per aprire l'informativa
* Questi campi sono obbligatori

Calcola il tuo mutuo

Semplice e senza impegno
Anticipo

( % )
Mutuo

( % )

pochi semplici passi

inserisci i tuoi dati
Questionario completato
Grazie per aver richiesto un appuntamento senza impegno con un nostro Consulente del Credito e Assicurativo.

Hai inserito correttamente tutti i dati necessari e a breve riceverai una e-mail con un link da convalidare per inviare i tuoi dati.
Affiliato
C.g. Srl
Via Roma, 2 36066 Sandrigo (VI)

Il nostro staff


  • Arianna Zanon
    Affiliata

  • Rosario Marco La Barbera
    Affiliato

  • Mery Pesavento
    Coordinatrice

  • Sissi Stragliotto
    Collaboratrice
Via Roma, 2 36066 Sandrigo (VI)
Zona: Sandrigo - Montecchio Precalcino - Bressanvido - Schiavon - Breganze
Mostra su mappa
Orari: lunedì- venerdì: 09,00-12,30 e 15,00-19,30; sabato chiusura 12,30; sabato pomeriggio e domenica su appuntamento.
Affiliato
C.g. Srl
Via Roma, 2 36066 Sandrigo (VI)

2026 Tecnocasa Franchising S.p.A. - P. IVA 08365160152 - Via Monte Bianco 60/A 20089 Rozzano (MI). Ogni agenzia ha un proprio titolare ed è autonoma. Privacy policy | Policy utilizzo | Cookie policy