Porzione di trifamiliare in vendita

Bressanvido, Via Vgri
€ 325.000
4 locali 4 locali
190 Mq 190 Mq
2 bagni 2 bagni

Porzione di trifamiliare in vendita

Bressanvido, Via Vgri

Descrizione annuncio

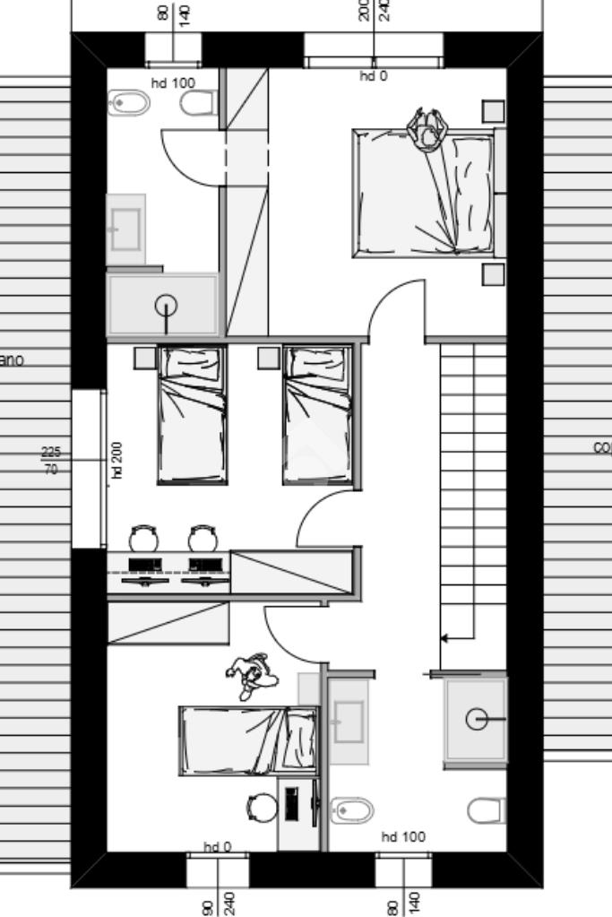
Villetta a schiera di centro di prossima realizzazione.
L'immobile è su due livelli e presenta dimensioni generose, composto da:
- Ampia zona giorno di 50 mq
- 3 camere
- 3 bagni
- Lavanderia
- Garage e giardino su 3 lati
L'immobile sarà realizzato con caratteristiche tali da renderlo classificabile come Classe energetica A/4. Le finiture saranno a scelta dell'acquirente, come previsto dal capitolato delle opere, che include:
- Pavimentazione in gres porcellanato 60x60 per la zona giorno e gres porcellanato effetto legno 20x120 per la zona notte
- Rivestimenti dei bagni in piastrelle di gres 30x60
- Serramenti in PVC con triplo vetro e avvolgibili in alluminio motorizzati
- Porta di ingresso blindata
- Controsoffitti in cartongesso per agevole installazione dell'impianto elettrico
- Muri perimetrali e pareti divisorie in fibrogesso
- Basculante del garage in portone sezionale
- Riscaldamento con impianto radiante a pavimento e pompa di calore elettrica (no gas) con predisposizione dell'impianto solare termico
- Impianto di ventilazione meccanica controllata (WMC) di serie
- Predisposizione impianto di climatizzazione estiva

Inoltre, è possibile acquistare l'immobile allo stato grezzo al prezzo di 175.000€.

Possibilità di acquisto di altra porzione DI TESTA al prezzo di 345.000€ finita oppure di 185.000€ al grezzo.

Mostra tutto

Nelle vicinanze

Trasporto pubblico Trasporto pubblico
Bressanvido
Bressanvido
160 m
Bressanvido - Farmacia
Bressanvido - Farmacia
560 m
Scuole Scuole
Scuola dell'infanzia parrocchiale "Ai Caduti"
110 m
Scuole
120 m
Scuola primaria "Le Risorgive"
1,5 Km
Scuola Primaria Sebastiano Tecchio
2,1 Km
Scuola primaria Sebastiano Tecchio
2,1 Km
Farmacia Farmacia
Farmacia San Rocco
450 m
Farmacia dott.ssa Todesco
1,9 Km
Parafarmacia erboristeria Stocco
2,9 Km
Farmacia al Duomo
2,9 Km
Ospedali Ospedali
Centro Sanitario Polifunzionale Maraschin-Zannini
2,8 Km
Ospedali
2,8 Km
Supermercati Supermercati
Scanagatta Market
350 m
Spaccio Latterie Vicentine
500 m
Latterie Vicentine
720 m
Despar Boscato
1,9 Km
Coop
2,0 Km
Negozi Negozi
Scalco abbigliamento
340 m
Panificio Lieciani
380 m
Il Forno
2,9 Km
Valentina
2,9 Km
Negozi
2,9 Km
Bar Bar
Bar NOI
140 m
Birreria alla Pesa
400 m
Bar commercio da Carolo
420 m
Bar
1,7 Km
Bar all'Isola
2,0 Km
Ristoranti Ristoranti
Cà diVino
1,5 Km
Trattoria da Palmerino
2,0 Km
La Colombara
2,2 Km
Trattoria Due Spade
2,8 Km
Pizzeria Vecchia Napoli
2,9 Km
Mostra tutto

Caratteristiche

Rif.:
61176248
Piano:
Su più livelli di 2
Totale piani:
2
Box:
1
Posti auto:
2
Terrazzi:
1
Mostra tutto
Prezzo Prezzo
€ 325.000
Rata mutuo Rata mutuo
€ 1.543 / mese
Spese annue Spese annue
€ 0
Proponi il tuo prezzoProponi il tuo prezzo

Classe Energetica

A4
A4
A4
A4
A4
A4
A4
A4
A4
EP globale non rinnovabile:
50.00 kW h/m² anno
EP globale rinnovabile:
0.50 kW h/m² anno
EP invernale del fabbricato:
EP estiva del fabbricato:
Anno di costruzione:
2026
Riscaldamento:
Autonomo
Tipo impianto:
A pavimento
Tipo alimentazione:
Pannelli

Ti interessa visionare l'immobile?

Fissa un appuntamento  Fissa un appuntamento

Richiedi informazioni

Clicca su Leggi per aprire l'informativa
* Questi campi sono obbligatori

Calcola il tuo mutuo

Semplice e senza impegno
Anticipo

( % )
Mutuo

( % )

pochi semplici passi

inserisci i tuoi dati
Questionario completato
Grazie per aver richiesto un appuntamento senza impegno con un nostro Consulente del Credito e Assicurativo.

Hai inserito correttamente tutti i dati necessari e a breve riceverai una e-mail con un link da convalidare per inviare i tuoi dati.
Affiliato
C.g. Srl
Via Roma, 2 36066 Sandrigo (VI)

Il nostro staff


  • Arianna Zanon
    Affiliata

  • Rosario Marco La Barbera
    Affiliato

  • Mery Pesavento
    Coordinatrice

  • Sissi Stragliotto
    Collaboratrice
Via Roma, 2 36066 Sandrigo (VI)
Zona: Sandrigo - Montecchio Precalcino - Bressanvido - Schiavon - Breganze
Mostra su mappa
Orari: lunedì- venerdì: 09,00-12,30 e 15,00-19,30; sabato chiusura 12,30; sabato pomeriggio e domenica su appuntamento.
Affiliato
C.g. Srl
Via Roma, 2 36066 Sandrigo (VI)

2026 Tecnocasa Franchising S.p.A. - P. IVA 08365160152 - Via Monte Bianco 60/A 20089 Rozzano (MI). Ogni agenzia ha un proprio titolare ed è autonoma. Privacy policy | Policy utilizzo | Cookie policy