Bifamiliare in vendita

Montecchio Precalcino, Via roma - Preara
€ 385.000
4 locali 4 locali
177 Mq 177 Mq
2 bagni 2 bagni

Bifamiliare in vendita

Montecchio Precalcino, Via roma - Preara

Descrizione annuncio

In un tranquillo e accogliente quartiere residenziale, proponiamo in vendita villette di nuova costruzione. Si tratta di soluzioni bifamiliari, dotate di giardino privato e realizzate seguendo i più rigorosi criteri di efficienza energetica.

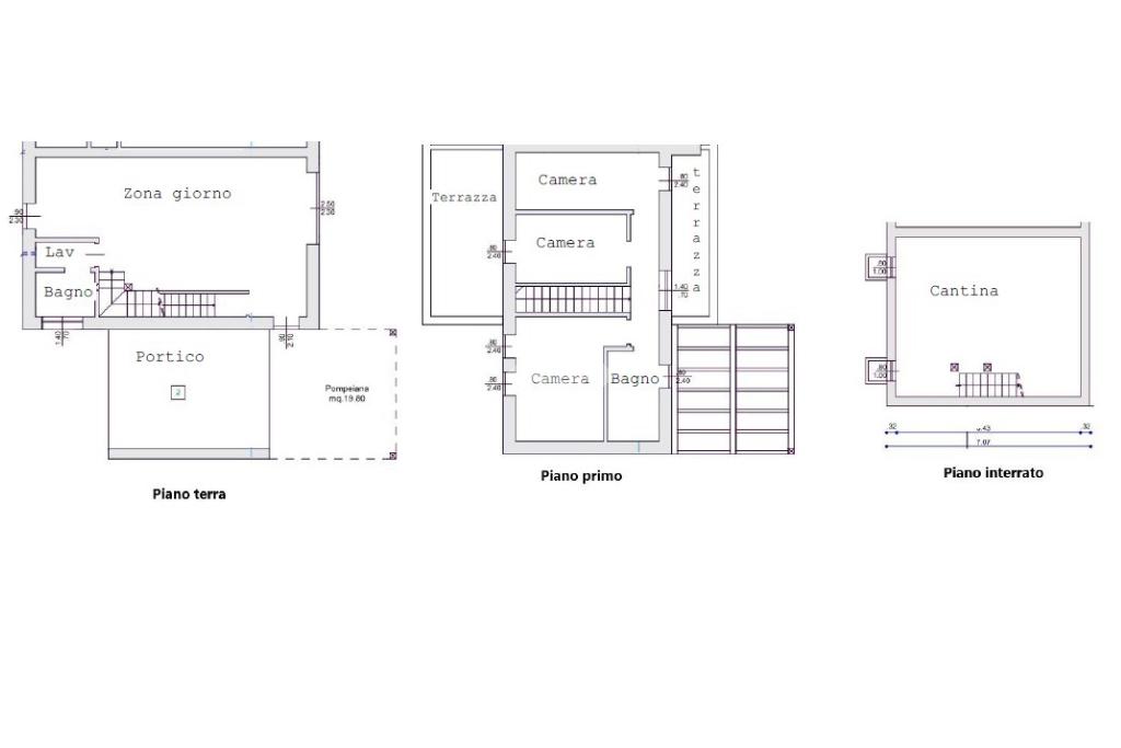
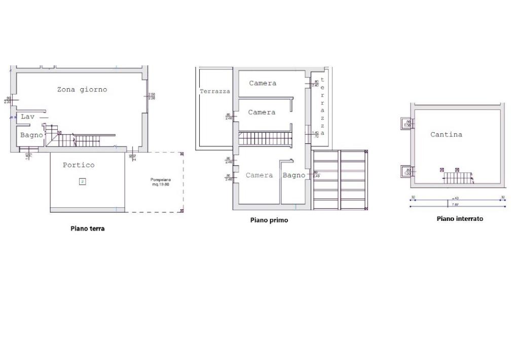
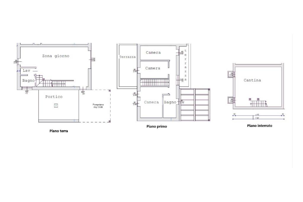
Queste proprietà si sviluppano su tre piani, offrendo spazi ideali per le famiglie. Al piano terra, si trova una luminosa zona giorno caratterizzata da una splendida vetrata che si affaccia sul giardino, oltre a un bagno di servizio e una lavanderia. Al primo piano, sono disponibili tre camere da letto con accesso ad un ampio terrazzo, perfetto per godere del panorama circostante e per momenti di relax e un ulteriore bagno.

Il piano interrato ospita una spaziosa stanza di 34 mq, che può essere utilizzata come taverna oppure come locale di disbrigo, offrendo ulteriore versatilità. Completano la proprietà un portico, perfetto per il ricovero dell’auto, e una pompeiana.

È possibile personalizzare le finiture e la distribuzione degli spazi interni, garantendo così la massima libertà di scelta per soddisfare le proprie esigenze.

La consegna dell'immobile è prevista per settembre 2025.

Inoltre, esiste l’opzione di acquistare le villette al grezzo, al prezzo di € 270.000.

Non perdere l'opportunità di vivere in una casa che combina comfort, spazio e modernità. Contattaci per maggiori informazioni e per organizzare una visita!

Mostra tutto

Nelle vicinanze

Trasporto pubblico Trasporto pubblico
Villaverla - Montecchio
Villaverla - Montecchio
2,9 Km
Sandrigo - Caseificio
Sandrigo - Caseificio
2,3 Km
Passo di Riva
Passo di Riva
2,6 Km
Scuole Scuole
Scuole Elementari Montecchio Precalcino
490 m
Scuole Medie Montecchio Precalcino
510 m
Scuole
2,3 Km
Scuola secondaria di primo grado Giacomo Zanella
2,9 Km
Farmacia Farmacia
Farmacia Passo di Riva
2,8 Km
Supermercati Supermercati
Davide
370 m
Prix
2,6 Km
Supermercati
2,8 Km
Negozi Negozi
BeYou
1,9 Km
Su Bazar
2,6 Km
Panificio dai Fornari
2,9 Km
Bar Bar
Bar Parsifal
1,7 Km
H2O
2,0 Km
Bar Bianco Lattebusche
2,2 Km
Bar
2,3 Km
Bar 4 Venti
2,6 Km
Ristoranti Ristoranti
Trattoria alle Quattro Strade
1,3 Km
Don Pablo
1,7 Km
Pizzeria Alle fornaci
2,1 Km
Ristorante Da Elvio
2,5 Km
Lino's Pizza
2,5 Km
Mostra tutto

Caratteristiche

Rif.:
61041328
Piano:
Su più livelli di 3
Totale piani:
3
Box:
1
Posti auto:
1
Terrazzi:
2
Mostra tutto
Prezzo Prezzo
€ 385.000
Rata mutuo Rata mutuo
€ 1.780 / mese
Spese annue Spese annue
€ 0
Proponi il tuo prezzoProponi il tuo prezzo

Classe Energetica

A4
A4
A4
A4
A4
A4
A4
A4
A4
EP globale non rinnovabile:
50.00 kW h/m² anno
EP globale rinnovabile:
0.20 kW h/m² anno
EP invernale del fabbricato:
EP estiva del fabbricato:
Anno di costruzione:
2025
Riscaldamento:
Autonomo
Tipo impianto:
A pavimento
Tipo alimentazione:
Pannelli

Ti interessa visionare l'immobile?

Fissa un appuntamento  Fissa un appuntamento

Richiedi informazioni

* Questi campi sono obbligatori

Calcola il tuo mutuo

Semplice e senza impegno
Anticipo

( % )
Mutuo

( % )

pochi semplici passi

inserisci i tuoi dati
Questionario completato
Grazie per aver richiesto un appuntamento senza impegno con un nostro Consulente del Credito e Assicurativo.

Hai inserito correttamente tutti i dati necessari e a breve riceverai una e-mail con un link da convalidare per inviare i tuoi dati.
Affiliato
C.g. Srl
Via Roma, 2 36066 Sandrigo (VI)

Il nostro staff


  • Arianna Zanon
    Affiliata

  • Rosario Marco La Barbera
    Affiliato

  • Mery Pesavento
    Coordinatrice

  • Sissi Stragliotto
    Collaboratrice
Via Roma, 2 36066 Sandrigo (VI)
Zona: Sandrigo - Montecchio Precalcino - Bressanvido - Schiavon - Breganze
Mostra su mappa
Orari: lunedì- venerdì: 09,00-12,30 e 15,00-19,30; sabato chiusura 12,30; sabato pomeriggio e domenica su appuntamento.
Affiliato
C.g. Srl
Via Roma, 2 36066 Sandrigo (VI)

2025 Tecnocasa Franchising S.p.A. - P. IVA 08365160152 - Via Monte Bianco 60/A 20089 Rozzano (MI). Ogni agenzia ha un proprio titolare ed è autonoma. Privacy policy | Policy utilizzo | Cookie policy