Capannone in affitto

Sandrigo, via rivana
€ 1.800 / mese
3 locali 3 locali
612 Mq 612 Mq
2 bagni 2 bagni

Capannone in affitto

Sandrigo, via rivana

Descrizione annuncio

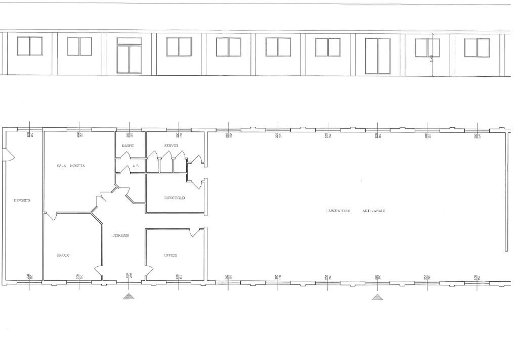
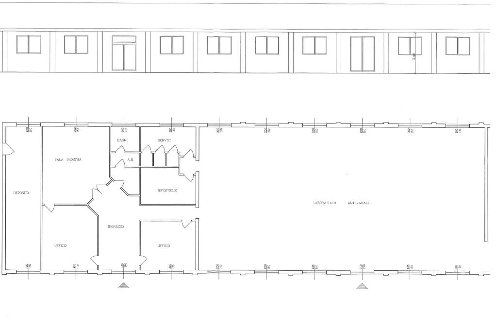
AFFITTASI CAPANNONE IN OTTIMO STATO – INTERAMENTE AL PIANO TERRA

Si propone in locazione capannone completamente sviluppato al piano terra, in ottime condizioni.

L’immobile dispone di un ampio piazzale esterno di pertinenza, con alcuni posti auto coperti.

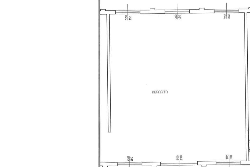
La superficie complessiva è di 612 mq, suddivisa come segue:

Uffici: 192 mq, comprensivi di due servizi igienici;

Laboratorio principale: 288 mq;

Secondo laboratorio: 132 mq, collegato al primo e dotato di portone a due ante ad apertura a libro (larghezza 2,90 m – altezza 3,00 m).
I due locali laboratorio possono essere eventualmente uniti per creare un unico ambiente di lavoro.

Altezza interna fino ai tiranti: 3,50 m.

L’accesso al capannone avviene tramite strada non idonea al transito di mezzi di grandi dimensioni es. bilici.

Disponibile da subito.

L’edificio è stato costruito intorno al 1965. Nel 1985 è stata eseguita una ristrutturazione interna con la realizzazione di nuovi uffici. Successivamente, nel 2010, è stato effettuato il rifacimento della guaina di copertura del tetto.

Mostra tutto

Nelle vicinanze

Trasporto pubblico Trasporto pubblico
Sandrigo - Autostazione
Sandrigo - Autostazione
400 m
Sandrigo - Bar Palmerino
Sandrigo - Bar Palmerino
1,0 Km
Scuole Scuole
Scuola secondaria di primo grado Giacomo Zanella
860 m
Scuole
980 m
Scuola primaria Sebastiano Tecchio
2,5 Km
Scuola Primaria Sebastiano Tecchio
2,5 Km
Scuola dell'infanzia parrocchiale "Ai Caduti"
2,7 Km
Farmacia Farmacia
Farmacia al Duomo
490 m
Parafarmacia erboristeria Stocco
510 m
Farmacia Sandrigo
640 m
Farmacia dott.ssa Todesco
2,1 Km
Farmacia Menga
2,4 Km
Ospedali Ospedali
Centro Sanitario Polifunzionale Maraschin-Zannini
870 m
Ospedali
880 m
Supermercati Supermercati
A&O Sandrigo
590 m
Supermercati
930 m
Prix
1,3 Km
Belmarket
1,5 Km
Despar Boscato
2,1 Km
Negozi Negozi
Il Forno
390 m
Colori ed affini
420 m
Panificio Vicentini
440 m
Luigi Zolin
450 m
Negozi
460 m
Bar Bar
Bar Stazione
410 m
Caffè Commercio
430 m
Bar Impero
440 m
Bar 4 Venti
1,3 Km
Bar Trattoria Risorta
1,6 Km
Ristoranti Ristoranti
Trattoria Due Spade
290 m
Pizzeria Vecchia Napoli
380 m
Luigi Zolin
400 m
Locanda Centrale
450 m
Ristorante L'Approdo
500 m
Mostra tutto

Caratteristiche

Rif.:
61141284
Piano:
Terra
Posti auto:
4
Condizionamento:
Predisposizione impianto
Ascensore:
No
Riscaldamento:
Autonomo
Mostra tutto
Prezzo Prezzo
€ 1.800 / mese
Spese annue Spese annue
€ 0

Classe Energetica

F
F
F
F
F
F
F
F
F
EP globale non rinnovabile:
200.00 kW h/m² anno
EP invernale del fabbricato:
EP estiva del fabbricato:
Anno di costruzione:
1960
Riscaldamento:
Autonomo
Tipo impianto:
Ad aria
Tipo alimentazione:
Aria

Ti interessa visionare l'immobile?

Fissa un appuntamento  Fissa un appuntamento

Richiedi informazioni

Clicca su Leggi per aprire l'informativa
* Questi campi sono obbligatori
Affiliato
C.g. Srl
Via Roma, 2 36066 Sandrigo (VI)

Il nostro staff


  • Arianna Zanon
    Affiliata

  • Rosario Marco La Barbera
    Affiliato

  • Mery Pesavento
    Coordinatrice

  • Sissi Stragliotto
    Collaboratrice
Via Roma, 2 36066 Sandrigo (VI)
Zona: Sandrigo - Montecchio Precalcino - Bressanvido - Schiavon - Breganze
Mostra su mappa
Orari: lunedì- venerdì: 09,00-12,30 e 15,00-19,30; sabato chiusura 12,30; sabato pomeriggio e domenica su appuntamento.
Affiliato
C.g. Srl
Via Roma, 2 36066 Sandrigo (VI)

2026 Tecnocasa Franchising S.p.A. - P. IVA 08365160152 - Via Monte Bianco 60/A 20089 Rozzano (MI). Ogni agenzia ha un proprio titolare ed è autonoma. Privacy policy | Policy utilizzo | Cookie policy